Do Real Estate on the Go!
- Overview
- Description
- Property Details
- Location

Do Real Estate on the Go!
Download App
Listed by: | Coldwell Banker Yorke Realty (207) 363-4300
$1,089,000
3 Beds
- 3 Baths
2 full baths + 1 half bath
1,816sqft
294 York St #Unit 1, York, ME 03909
$1,089,000
Get Pre-Approved
Condominium
Built in 2026
$-- HOA
23,522 sqft lot
$600/sq.ft
Description
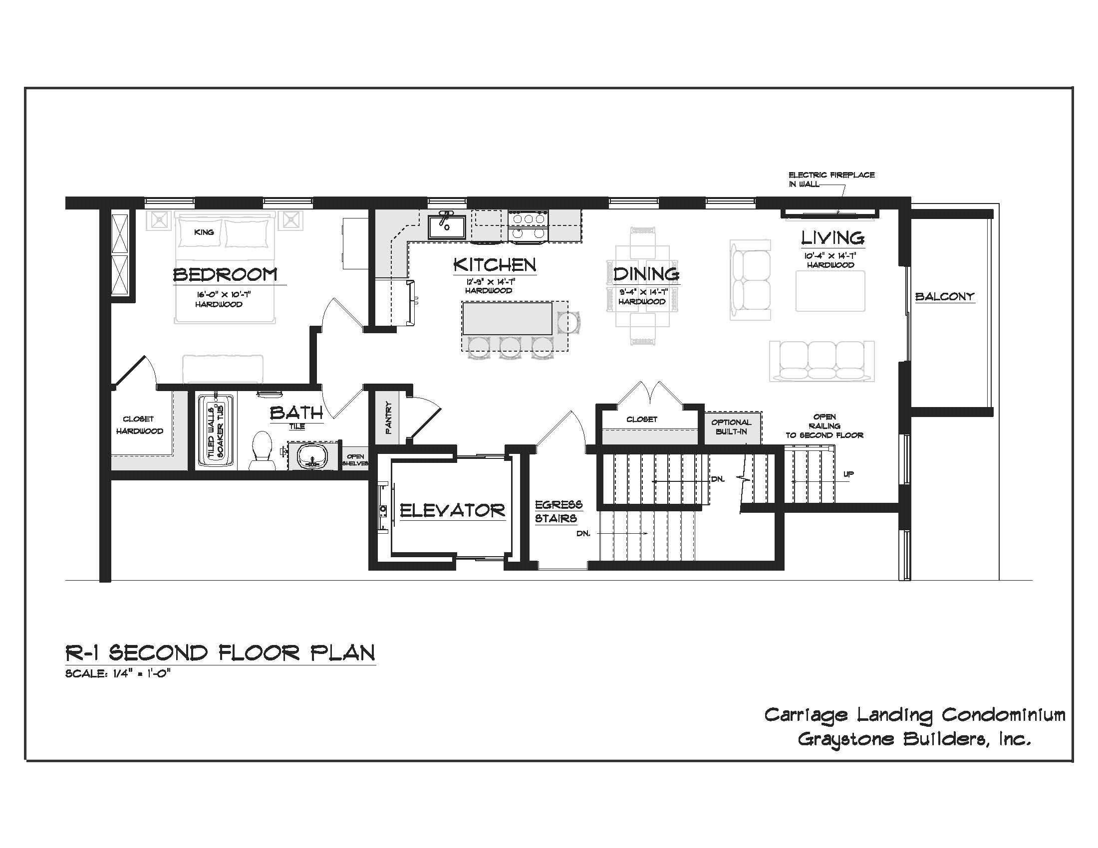
WELCOME TO YORK VILLAGE’S NEWEST LUXURY TOWNHOME COMMUNITY – Carriage Landing ~ where luxury, location, and lifestyle meet for everyday living. Designed and built by Graystone Builders, Inc., this to-be-built multi-level luxury condo townhome offers open-concept living, hardwood floors throughout and natural light. Designed with flexibility in mind, the main level allows the third bedroom to transition seamlessly into a dedicated home office, ideal for modern needs. Create the kitchen of your dreams and one designed around your lifestyle with generous allowances for custom cabinetry, countertops, appliances and lighting. The shared private-entry elevator (with Unit 2), la...
Continue ReadingProperty Details
Status
Active
Type
Condominium
No. of Stories
-
County
City
Neighborhood
--
Year Built
2026
HOA Fees
-
Finished Area
1,816 sqft
Lot Size
23,522 sqft lot
Basement Area
- sqft
MLS Name
NEREN/Prime MLS
MLS Number
5070280
MLS Status
(10) Active - Active
Days on Market
116
Love this home?
Here's 4 things you can do
