Do Real Estate on the Go!
- Overview
- Description
- Property Details
- Location

Do Real Estate on the Go!
Download App
$389,000
3 Beds
- 3 Baths
2 full baths + 1 half bath
1,874sqft
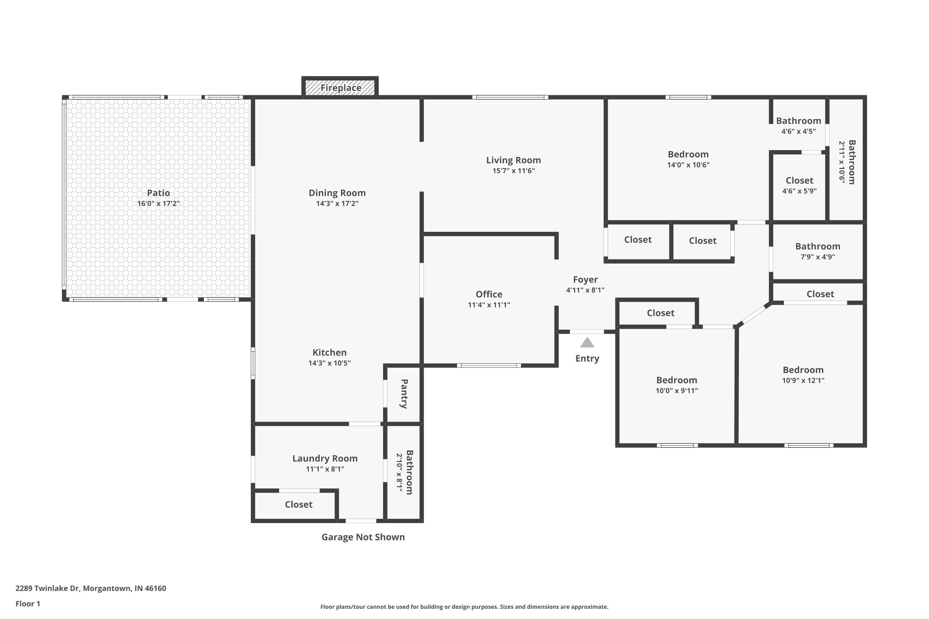
2289 Twinlake Dr, Morgantown, IN 46160
$389,000
Get Pre-Approved
Manufactured On Land
Built in 1982
$-- HOA
5 acres lot
$208/sq.ft
Description
Welcome to your private retreat in Morgantown, IN, located within Brown County Schools and just 10 miles from the charm of downtown Nashville and Hard Truth Distillery. This 3-bedroom, 2.5-bath brick ranch sits on 5 scenic acres and offers partial ownership and access to a 3.5-acre shared pond where you can kayak, canoe, fish, or swim! Inside, the home features cherry kitchen cabinets with stone countertops, a gas fireplace in the dining area, a newly renovated half bath off the laundry room, and an included washer and dryer less than a year old along with a five-year-old dishwasher. Recent updates provide peace of mind with an HVAC system, windows, and doors all replaced...
Continue ReadingProperty Details
Status
Pending
Type
Manufactured Mobile Home
No. of Stories
-
County
--
City
Neighborhood
--
Year Built
1982
HOA Fees
-
Finished Area
1,874 sqft
Lot Size
5 acres lot
Basement Area
- sqft
MLS Name
Indiana Regional MLS
MLS Number
202541757
MLS Status
Pending
Days on Market
158
Love this home?
Here's 4 things you can do





