Do Real Estate on the Go!
- Overview
- Description
- Property Details
- Location

Do Real Estate on the Go!
Download App
$309,800
2 Beds
- 2 Baths
2 full baths
1,051sqft
230 Windsor Ln #A, Willowbrook, IL 60527
$309,800
Get Pre-Approved
Condominium
Built in 1981
$312 HOA
-- sqft lot
$295/sq.ft
Description
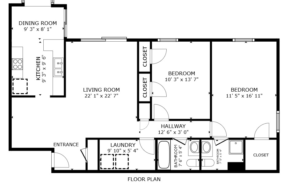
STANHOPE SQUARE is owners occupied, in Hinsdale Central HS district. This end unit ranch has both a breakfast and dining area and dual sliding doors from the kitchen/eating area as well as the living room. You will love the beautiful wood floors throughout and the plantation shutters in the bedrooms but most of all the garden window in the breakfast area - with a view to lovely green space and spring flowers. The in-unit utility room provides full size washer (8'2025) and 3 year old gas dryer, both with transferable warranties. The unit has been meticuliuosly maintained but is being sold "as-is". Pets must not exceed 40 pounds in weight. MAXIMUM TOTAL NUMBER OF PETS P...
Continue ReadingProperty Details
Status
Active
Type
Condominium
No. of Stories
2
County
City
Neighborhood
--
Year Built
1981
HOA Fees
$312
Finished Area
1,051 sqft
Lot Size
-- sqft lot
Basement Area
- sqft
MLS Name
MRED MLS
MLS Number
12590166
MLS Status
Active
Days on Market
10
Love this home?
Here's 4 things you can do





