Do Real Estate on the Go!
- Overview
- Description
- Property Details
- Location

Do Real Estate on the Go!
Download App





Street View
$245,000
2 Beds
- 2 Baths
1 full bath
1,266sqft
2650 University Ave W #311, Saint Paul, MN 55114
$245,000
Get Pre-Approved
Condominium
Built in 2006
$414/mo HOA
-- sqft lot
$194/sq.ft
Description
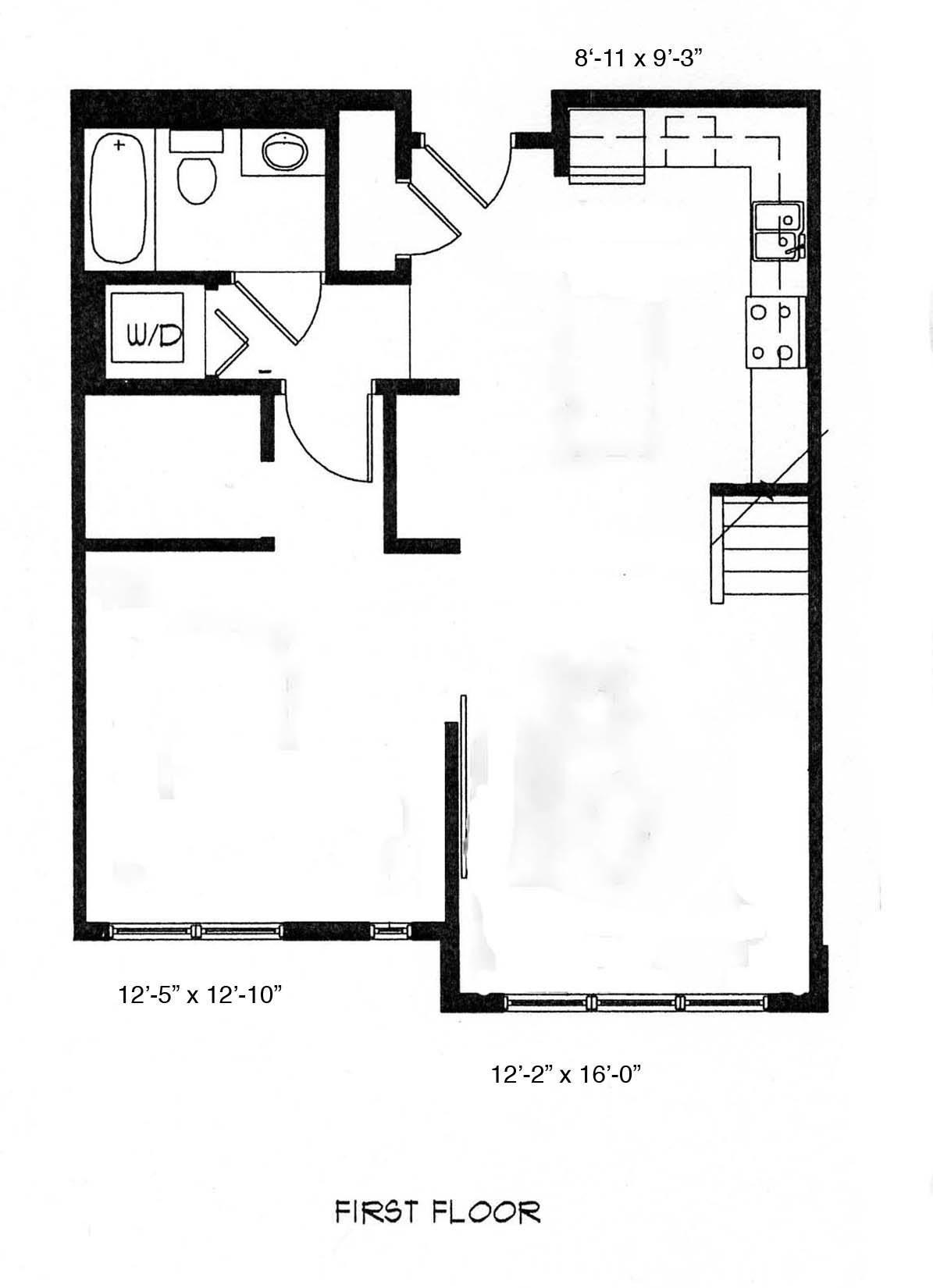
Wonderful open concept floor plan, main level bedroom with walk in closet, full bath on main, stackable washer dryer in unit, upper level has a very large bedroom or flex room with 3/4 bath and patio access with city views.
Property Details
Status
Active
Type
Condominium
No. of Stories
-
County
City
Neighborhood
--
Year Built
2006
HOA Fees
$414 Monthly
Finished Area
1,266 sqft
Lot Size
-- sqft lot
Basement Area
- sqft
MLS Name
Northstar MLS
MLS Number
6826535
Days on Market
1
Love this home?
Here's 4 things you can do
