Do Real Estate on the Go!
- Overview
- Description
- Property Details
- Location

Do Real Estate on the Go!
Download App
$349,000
4 Beds
- 3 Baths
2 full baths + 1 half bath
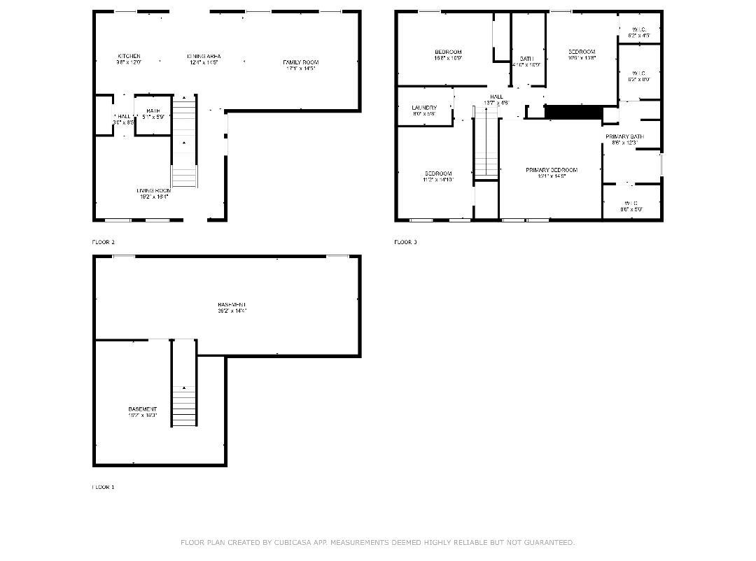
2,247sqft
10305 Woodsong Cvs, New Haven, IN 46774
$349,000
Get Pre-Approved
Manufactured On Land
Built in 2022
$300/mo HOA
14,850 sqft lot
$155/sq.ft
Description
OVER 3100 sq ft of Living Space!!! Welcome to this beautifully maintained, move-in-ready home that offers the perfect blend of modern living and future potential! Nestled in a desirable neighborhood, this 3-year-old home is better than new, featuring an unfinished daylight basement—a rare find in Indiana and a valuable asset during tornado season. Step onto the inviting covered front porch facing east, perfect for morning coffee, or unwind on the wood deck overlooking the serene pond as the sun sets in the west. Grass has just been reseeded and ready for spring! Inside, you'll love the open-concept design that seamlessly connects the kitchen, dining area, and family r...
Continue ReadingProperty Details
Status
Pending
Type
Manufactured Mobile Home
No. of Stories
-
County
--
City
Neighborhood
--
Year Built
2022
HOA Fees
$300 Monthly
Finished Area
2,247 sqft
Lot Size
14,850 sqft lot
Basement Area
- sqft
MLS Name
Indiana Regional MLS
MLS Number
202523833
Days on Market
167
Love this home?
Here's 4 things you can do
