Do Real Estate on the Go!
- Overview
- Description
- Property Details
- Location

Do Real Estate on the Go!
Download App
Street View
$4,400,000
-- Bed
- -- Bath
--sqft
1079 Palisade Ave, Fort Lee, NJ 07024
$4,400,000
Get Pre-Approved
Mixed Use
Built in -
$-- HOA
-- sqft lot
--/sqft
Description
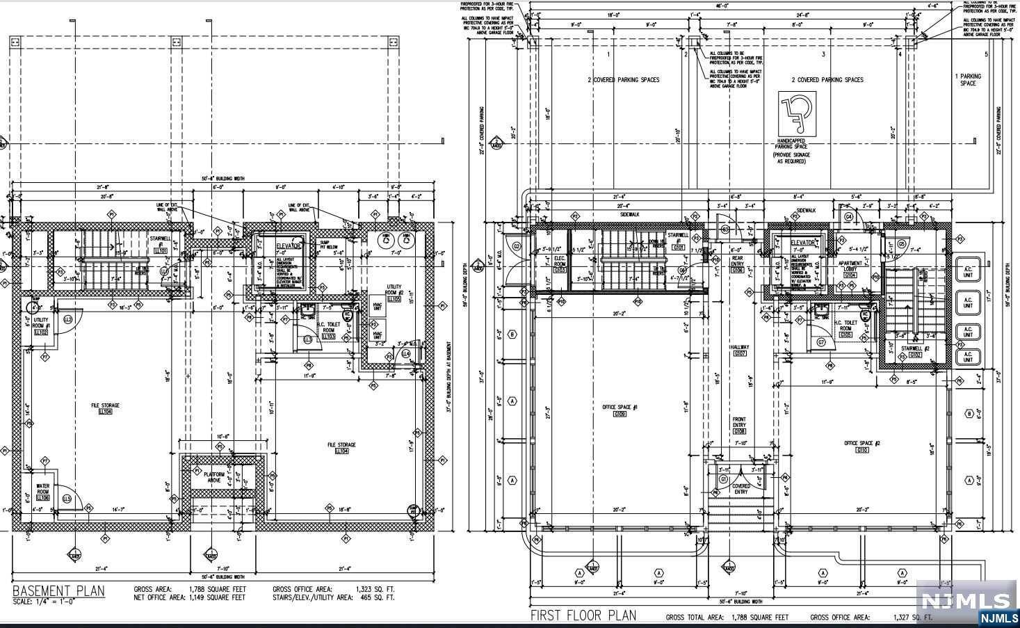
For Sale: Mixed-Use New Construction Building with Elevator- Welcome to this exceptional mixed-use property located on Palisade Avenue, Fort Lee, NJ, a burgeoning hub with unparalleled potential. This newly constructed, free-standing, modern building spans 3- stories and a finished basement with 15 parking spots, offering office space to accommodate various business and residential needs. -- First & Second Floors: Office space: Each level is thoughtfully configured for office use. 1st Fl (1,788 sq/ft), 2nd Fl (2,881 sq/ft) and ,Ground Fl (1,788 sq/ft) flexible space per floor. The open layout allows for customized office setups. -- Third Floors: 2 APTs (apx:1,178/1,100 sq...
Continue ReadingProperty Details
Status
Active
Type
Condominium
No. of Stories
-
County
City
Neighborhood
--
Year Built
-
HOA Fees
-
Finished Area
- sqft
Lot Size
-- sqft lot
Basement Area
- sqft
MLS Name
New Jersey MLS
MLS Number
24027619
MLS Status
Active - Active
Days on Market
465
Love this home?
Here's 3 things you can do
