Do Real Estate on the Go!
- Overview
- Description
- Property Details
- Location

Do Real Estate on the Go!
Download App
Street View
$349,000
3 Beds
- 2 Baths
2 full baths
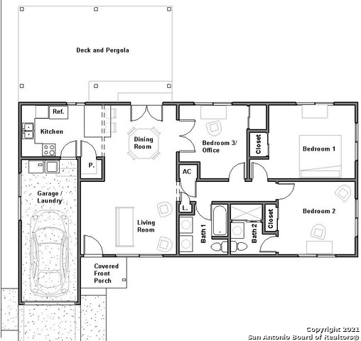
1,132sqft
118 Emporia Blvd, San Antonio, TX 78209
$349,000
Single Family Residence
Built in 1952
$-- HOA
7,840.8 sqft lot
$308/sq.ft
Description
Original hardwood floors, custom roller shades, and updated bathrooms. Kitchen has granite counters, pantry, and newer appliances. Overhead storage system and washer/dryer hookups in garage. Newer 30-year roof, Low E windows, brand new HVAC system with smart thermostat, and R-38 insulation in roof. Backyard has covered pergola, raised garden beds, and custom stock tank pool. Fully integrated Ring security system, including connected fire alarms.
Property Details
Status
Closed
Type
Single Family Residence
No. of Stories
-
County
City
Neighborhood
--
Year Built
1952
HOA Fees
-
Finished Area
1,132 sqft
Lot Size
7,840.8 sqft lot
Basement Area
- sqft
MLS Name
LERA MLS
MLS Number
1565077
MLS Status
SLD
Days on Market
-
