Do Real Estate on the Go!
- Overview
- Description
- Property Details
- Location

Do Real Estate on the Go!
Download App
Street View
$149,000
1 Bed
- 1 Bath
1 full bath
1,089sqft
66388 Hwy 434, Lacombe, LA 70445
$149,000
Get Pre-Approved
Single Family Residence
Built in 1976
$-- HOA
25,760 sqft lot
$137/sq.ft
Description
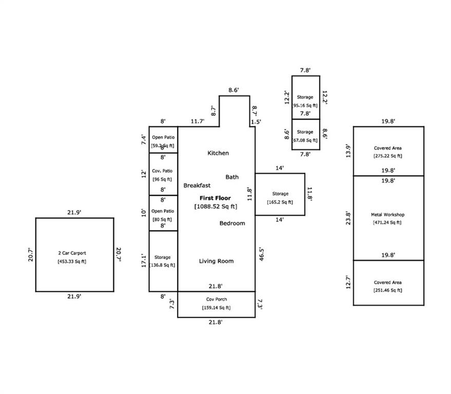
All-electric home has great bones. This once operated as a convenience store but has been converted into a unique, one-of-a-kind, 1-bed, 1-bath home. House is positioned near the center of the property surrounded by sheds, carports, & kennels. Yard is fenced & cross fenced. The southside holds the large, electrified workshop (471 sq ft) with lean-tos on each side. Bring your goats, chickens, horses, & cows! Convenient location just 3 minutes to I12, Louisiana Heart Hospital, Folgers, & Northshore Technical Community College. 2 minutes to Highway 36. Builders & investors, come take a look! New construction going up all around. Preferred flood zone.
Property Details
Status
Active
Type
Single Family Residence
No. of Stories
1
County
City
Neighborhood
--
Year Built
1976
HOA Fees
-
Finished Area
1,089 sqft
Lot Size
25,760 sqft lot
Basement Area
- sqft
MLS Name
REALTOR® Association of Acadiana (Lafayette) MLS
MLS Number
NO2504698
MLS Status
Active
Days on Market
186
Love this home?
Here's 4 things you can do
