Do Real Estate on the Go!
- Overview
- Description
- Property Details
- Location

Do Real Estate on the Go!
Download App
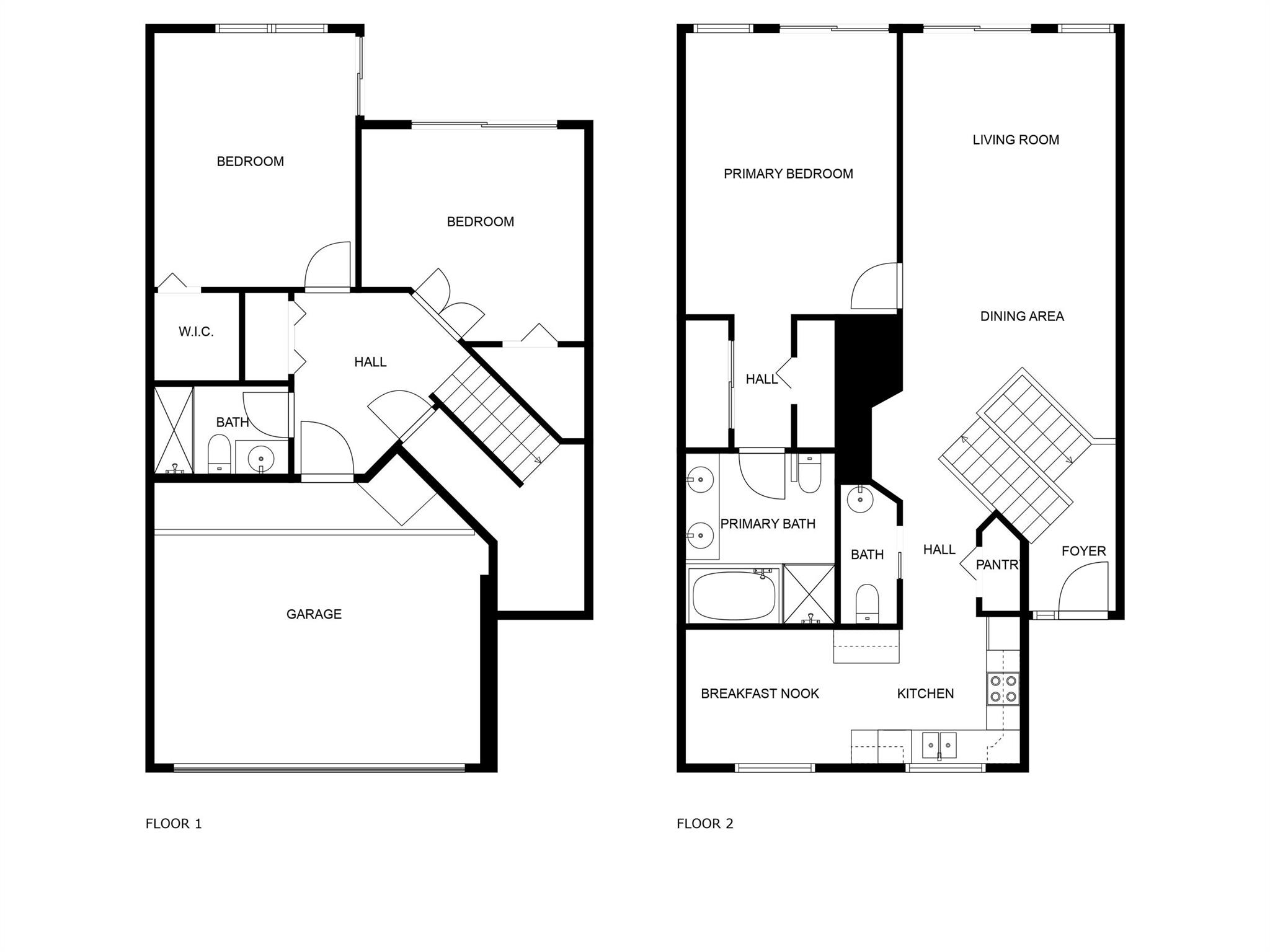
$293,000
3 Beds
- 3 Baths
2 full baths + 1 half bath
1,750sqft
9215 Wentworth Lane #9215, Port St Lucie, FL 34986
$293,000
Townhouse
Built in 2001
$480/mo HOA
-- sqft lot
$167/sq.ft
Description
ROOF IS 2024! What a beautiful location! This is a 3 bedroom, 2.5 bath and a 2 car garage overlooking the water view with a serene fountain sound every day. This home has been used as a second home since 2004 and has been lovingly cared for. Tiled floors throughout except carpet on the stairs. Location is key! Castle Pines allows for short term rentals and is the perfect location near St Lucie West shopping, around the corner from Tradition and all that it has to offer. Need to commute? Right over the bridge to I95 north and south! This home is ready for you to call home or visit as a seasonal residence. Being sold Fully Furnished and Turn Key! Castle Pines offers a ...
Continue ReadingProperty Details
Status
Closed
Type
Townhouse
No. of Stories
2
County
City
Neighborhood
--
Year Built
2001
HOA Fees
$480 Monthly
Finished Area
1,750 sqft
Lot Size
-- sqft lot
Basement Area
- sqft
MLS Name
Beaches MLS
MLS Number
R11106645
MLS Status
Closed
Days on Market
-
