Do Real Estate on the Go!
- Overview
- Description
- Property Details
- Location

Do Real Estate on the Go!
Download App
$533,450
5 Beds
- 4 Baths
3 full baths + 1 half bath
2,674sqft
Lot 169 Sturgeon Run, Muskegon, MI 49444
$533,450
Get Pre-Approved
Single Family Residence
Built in 2025
$42/mo HOA
15,681.6 sqft lot
$199/sq.ft
Description
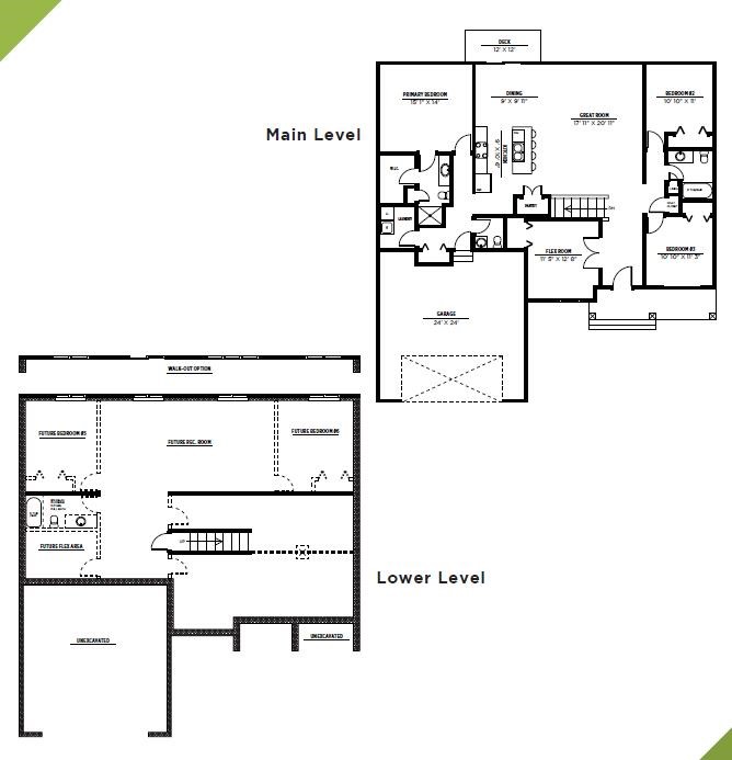
CUSTOM BUILD! This 'Red Fig' floorplan is situated on lot #169 with views of the woods and ravine and a walkout basement. The Red Fig offers 3 bedrooms, 2 1/2 bathrooms, and over 1800 sq ft of main floor living space. Interior upgrades include 9' main floor ceilings, quartz kitchen countertops, tiled kitchen backsplash, tiled shower walls, 48' electric fireplace, a double deep kitchen island & many more. Spacious open concept living area offers a slider to the 12x12 composite deck. The kitchen hosts quartz countertops, a center island, and a pantry. Large primary suite offers a walk in closet and full bathroom. The main floor hosts three more spacious bedrooms (one could ...
Continue ReadingProperty Details
Status
Pending
Type
Single Family Residence
No. of Stories
1
County
City
Neighborhood
--
Year Built
2025
HOA Fees
$42 Monthly
Finished Area
2,674 sqft
Lot Size
15,681.6 sqft lot
Basement Area
- sqft
MLS Name
MiRealSource MLS
MLS Number
70464733
MLS Status
Pending
Days on Market
234
Love this home?
Here's 4 things you can do
