Do Real Estate on the Go!
- Overview
- Description
- Property Details
- Location

Do Real Estate on the Go!
Download App
$224,999
3 Beds
- 3 Baths
2 full baths + 1 half bath
--sqft
(Undisclosed), Spartanburg, SC 29307
MISSING ADDRESS OR PRICE?
Sometimes listing brokers do not disclose the full address or price of a property. To get more details of this property, please contact the listing agent, or the listing provider.
$224,999
Get Pre-Approved
Single Family Residence
Built in -
$34/mo HOA
6,534 sqft lot
--/sqft
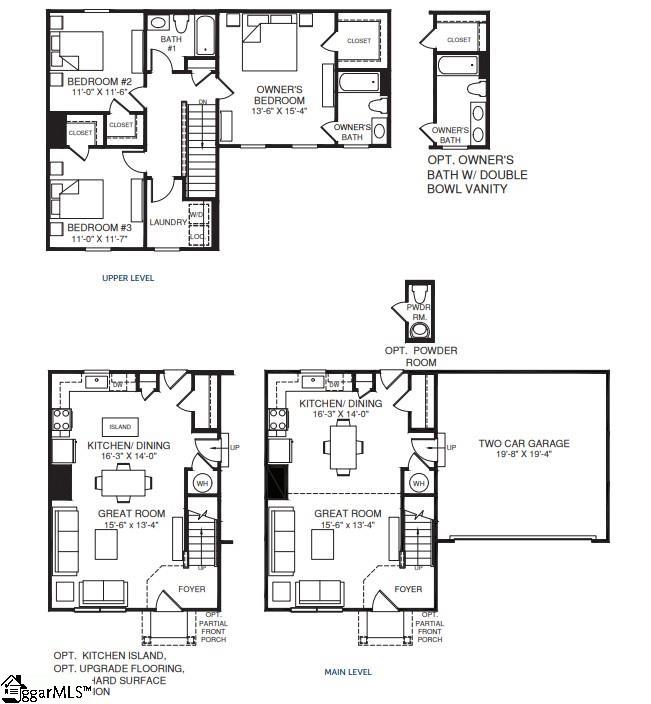
Description
The Aspen single-family home has it all. Enter the huge great room and immediately feel at home. The first floor's open concept means you are never far from the action. A cozy kitchen features an optional island; add a powder room for convenience. The entry off the garage provides a convenient spot for coats, so clutter is never an issue. Upstairs all 3 bedrooms are large and boast ample closets. A hall bath and laundry room provide total comfort. The owner's suite is the star of the home, with an en-suite bath and huge walk-in closet. Experience all that The Aspen has to give. Select from our professionally designed interior finishes with the help of our highly trained S...
Continue ReadingProperty Details
Status
Active
Type
Single Family Residence
No. of Stories
2
County
City
Neighborhood
--
Year Built
-
HOA Fees
$34 Monthly
Finished Area
- sqft
Lot Size
6,534 sqft lot
Basement Area
- sqft
MLS Name
Greater Greenville MLS
MLS Number
1573440
MLS Status
Active
Days on Market
52
Love this home?
Here's 4 things you can do
